生活美學 輕享安適

堅持有愛有溫度的設計理念,是鴻藝源設計總監鄭鴻做私宅設計的初心。19年來,他專注于私宅設計,為不同的居住者重新定義最適合他們本身的、真正的私享家園。從深圳灣1號、華潤悅府,到萬科東海岸、華僑城波托菲諾純水岸,再到近兩年的武漢天地云廷,他收獲了400多位豪宅客戶的高度認可,也逐步實踐出自己對私宅設計的認知。
這次的項目坐落在廣東東莞的愉景別墅,這里坐擁平闊的高爾夫球場、虎英公園,綠意盎然,鳥鳴成韻,自然回饋予人一片寧靜致遠的心境。


會客廳
設計將自然的靜寧與現代生活美學交織融合,打造一個清雅與安適并存的空間,不著墨于矯飾,不注重在風格,而是以真正的美學鑒賞角度做設計,匹配業主的格調與希冀,令居住日常回歸生活美學,輕享生活本身。
鄭鴻認為,以往的豪宅多是富麗堂皇的豪華感,而居住者的審美實際上隨著時代的變遷有了新的認識和提升,因此在設計中,私宅設計師更多的是要思量如何重新定義一個真正的私享家園?“私宅定制不僅要在材料上體現尊貴感與品質,還需在美學上賦予空間高雅的品尚,另外,還要更多地考慮人在空間的舒適體驗性,這才是值得落地的一個私宅設計,一個足以承載居者理想與期待的空間”,他這樣說道。






現代簡約風格不過期的美學魅力,在空間中將喧囂輕輕拂去,只留下生命中最澄澈的部分——純粹,干凈,靜美,簡單而不匱乏。設計用莫蘭迪的調色板在空間中畫出一種生活美學,霧霾藍、沁水粉、燕麥色……色彩上加以灰度的處理,予人純凈、自由且舒緩的感受,人的所有感官在這方靜謐中感知著美好以及最恰好的溫度。

餐廳
半開放餐廳可以更靈活地切換中西廚方式,空間的顏色以純凈的白色為主,令就餐空間更加簡凈明亮。一體式櫥柜完全貼合空間墻體定制,將每寸空間利用到極致,完成最大收納容量的同時,令視覺感延續。


沿著步梯到二樓,霧霾藍置物架與回廊組構成空間的動線,空氣的流通性無比順暢,暖和的光充滿整個室內,令區隔在置物架后的休閑區更顯隱蔽而閑靜。




休閑區
空間擺放著L型同色系沙發、白色趣味動物座椅、懶人沙發、柔軟的地毯,滿足一家人的日常休閑需求;而兒童座椅的幾抹海藍色十分出挑,整體搭配在視覺上顯得清爽雅靜。




主臥
主臥的空間用燕麥色與煙靄色的雅澹作為主調,不同灰度的藍色加以點綴。茶幾、書桌上僅有幾本書與花藝點綴;床品與家具、石材與木質等在品質感上得到了高標準的把控。偌大的衣帽間與衛浴室設計,令私享空間更為豐盛。自然的光線透過百葉窗折入室內,形成一層層迷蒙的光暈,時光在這里變得舒緩靜寧。

主臥與兩間兒童房中間打造了一個起居室,父母可以陪同孩童在這里回味一天發生的趣事或是遇到的繁瑣,在增進感情的同時又可保證彼此有足夠的私享空間。


兒童房
“私宅設計與純展示性的樣板房設計不同,因此我們考慮的是居住者的日常需要什么,而哪些裝點又是不必要的,拉近設計與生活的距離,在色彩搭配、形制打造與功能環保等方面做到內外兼修,既有外在的美又富有內涵。”
女兒房采取無主燈設計,書桌的高度與臺燈設計都參考小孩的身高與學習習慣,做到更加的人性化。兩間兒童房都定制了一整面的展示型斜面書架,方便小朋友們取放書籍。


長輩房
基于老人的日常起居生活需求,空間規劃將長輩房安置于一層,免去上下樓梯給老人家生活帶來的不方便。內部空間是簡潔雅馨的格調,三兩束小花裝點在床頭,在柔和的燈光下細數過往歲月的美好。

書房
書房采用了整體的書柜定制,一面可滑動的柜門用白色的乳膠漆刷出隨意的美。空間除了擔當書房之余,一側的空間擺放了沙發、坐墩及大理石茶桌、一套茶具,提供茶室的功能,招待來客,暢談生活。

私宅設計不是由各式各樣精致不凡的軟飾堆砌而成,亦不是過多風格化的打造,喧賓奪主,而是要回歸居住者的生活,摒除多余的裝飾與藝術品。“我們主張將空間留給真正的主人,讓他們有足夠的空間裝點日常的美,還原屬于自己的生活”,鄭鴻說道。
▽
鴻藝源設計,所見即所得
與商業設計不同的是,私宅設計的定制需求與設計偏好,幾乎不允許實際與效果上存在落差,因此,鴻藝源設計要求自身實現“所見即所得”,實現100%的實景還原,才能讓客戶擁有真正希冀的、美好的、豐盛的私享生活空間。這對設計團隊來說,是專業和資源的考驗與挑戰,需要擁有高于客戶的審美和體驗,擁有足夠強大的供應商體系,更要擁有對專業的極致追求和實現能力。

會客廳效果圖

會客廳實景圖

餐廳效果圖

餐廳實景圖

休閑區效果圖

休閑區實景圖

主臥效果圖

主臥實景圖

起居室效果圖

起居室實景圖

長輩房效果圖

長輩房實景圖

書房效果圖

書房實景圖

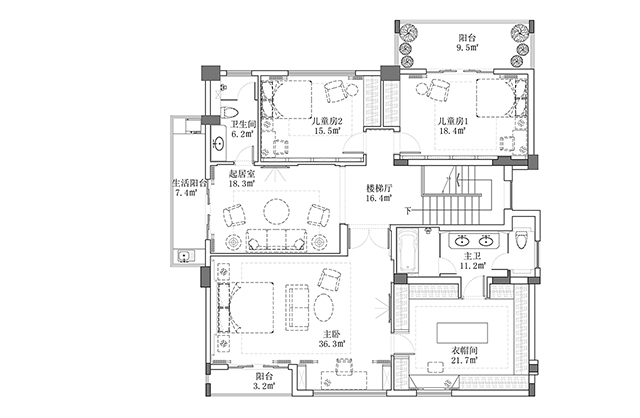
一層 平面圖

二層 平面圖

三層 平面圖

負一層 平面圖
項目名稱 | 東莞愉景別墅
項目地址 | 廣東 東莞
設計面積 | 550㎡
項目時間 | 2018年12月
硬裝設計 | 鴻藝源設計
硬裝總監 | 鄭鴻
軟裝設計 | 例外軟裝設計
軟裝總監 | 徐靜

深圳市鴻藝源建筑室內設計有限公司于2005年成立,專注于別墅設計及私人住宅設計研究,為私人客戶提供室內設計、軟裝設計服務,曾榮膺“2015年度中國十大設計團隊”、“大中華區最具影響力設計機構”等殊榮。

鴻藝源設計堅持“理性設計豐盛人生”,為國內外400多位名企高管和社會名流(騰訊、華為、富士康等企業巨頭,奧斯卡金像獎得主)實現其關于家的夢想,承接項目多為深圳頂級豪宅,擁有深圳灣一號、華僑城新天鵝堡、招商雙璽、華潤悅府、華僑城波托菲諾純水岸等別墅及豪宅案例。
近期作品


深圳翡翠海岸私宅設計


武漢天地云廷私宅設計


深圳山語清暉私宅設計





